Plan # 224028

Actual Photo

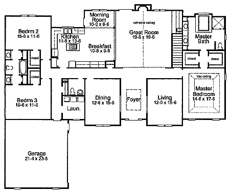
  • A European ranch home with a stucco exterior. It has 3 bedroom and 2 1/2 baths. The Master Bath has a sunken tub and a separate shower and 2 huge walk-in closets. The Great Room includes a soaring cathedral ceiling and a wet bar. It also features formal Dining and Living rooms. The Morning Room is nice for the sun lover in you!

    First Floor Plan

    Plans © 1991 Residential Designs

    Next PlanList All PlansHome PageOrder Form
    AdlinesLinks

    Thanks for visiting the Residential Designs WWW server.
    This page, and all contents, are Copyright © 1995 by DeWayne Epley. Kennesaw, Georgia, USA.

    This web site has been published by Adlines.