Plan # 224430

Country European 2 story home
3042 total square feet
Full Basement
56'-0"" x 48'-0" O.S. dimensions
Stucco and stone exterior
Actual Photo
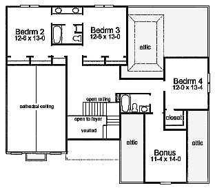
  • A Gorgeous Country European, stucco and stone home. Large Great Room off of the foyer with a cathedral ceiling invites you to entertain. Main floor master is private from the kids, and features a corner whirlpool tub and big walk-in closet. Upstairs you'll find 3 more nice sized bedrooms and a bonus area to finish off any way you'd like. Balcony overlooks the vaulted foyer for a stylish entryway.

    First Floor Plan
    Second Floor Plan

    Plans © 1991 Residential Designs

    Next PlanList All PlansHome PageOrder Form
    AdlinesLinks

    Thanks for visiting the Residential Designs WWW server.
    This page, and all contents, are Copyright © 1995 by DeWayne Epley. Kennesaw, Georgia, USA.

    This web site has been published by Adlines.